Maison à vendre Baie-Saint-Paul - sp913
info_outlineDescription
Description
Prestigieuse maison située à 1 km du centre-ville dans le quartier haut de gamme de Baie-Saint-Paul. Cette superbe propriété rénovée au goût du jour, vous offre un immense terrain intime sans voisin arrière de plus de 22 000 pc. dans une rue sans issue. Elle a été conçue afin de nécessiter un minimum d'entretien. Elle vous offre une magnifique verrière, une cuisine extérieure et une piscine creusée chauffée. À l'étage vous trouvez 4 ch. (possibilité de convertir le bureau du rdc en 5e ch.). Vous serez charmés par ses aires de vies lumineuses et son foyer au bois, son gym, sa salle de cinéma maison, sa cave à vin ainsi que garage double!
Plein centre-ville, rue sans issue, terrain orientation sud-est, construction 2009 rénovée à grand frais et au gout du jour en 2022, maison 2 étages de construction supérieure 4 côtés pierres totalisant 3200 pi.c. de surface habitable sur 3 niveaux, sous-sol entièrement aménagé. Terrain intime sans voisins arrière de 22 200 pi.c. entièrement aménagé avec cabanon sur dalle de béton, piscine creusée chauffée (thermopompe refaite en 2024), pompe 2025 avec filtration UV, cuisine extérieure avec BBQ DCS et frigo, gazebo avec toile neuve, système d'irrigation zoné et 2 robots tondeuses. RDC avec plafonds de 9' incluant grand bureau, salle de lavage, salle d'eau, salon, cuisine, salle à manger entièrement rénové en 2022: Rénovations: Cuisine complète, salle d'eau, salon, salle à manger, foyer Don-Bar, luminaires, électroménagers, rideaux, escalier. Plancher de bois et céramique Étage avec 4 grandes chambres à coucher (bureau possibilité 5e chambre) et 2 salles de bain complètes rénové en 2022: Rénovations: 3 chambres à coucher avec meubles intégrés haut de gamme, SDB enfants/invités, luminaires. Plancher de bois et céramique Sous-sol entièrement aménagé avec salle de cinéma, gym, garde-robe de cèdre, cave à vin et salle de bain complète. Plancher de bois d'ingénierie, vinyle HD et céramique Garage double avec atelier et descente sous-sol, plancher époxy et armoires/rangements complets sur mesure Autres infos: Système air chaud électrique 4 zones avec AC et humidificateur central, chargeur Tesla, intérieur entièrement repeint en 2022, fenêtres extérieures repeintes, scellant de toutes les ouvertures refait, porte garage et moteur neuf, chauffe-eau rapide, balayeuse centrale, rideaux neufs
Type de propriété
- Type :
- Maison
- Année de construction :
- 2009
Unités
- Nombre d'unités principales :
- 1
- Unités principales :
- 1 × 19 1/2
Évaluation municipale 2025
- Bâtiment :
- 673 300,00 $
- Terrain :
- 112 000,00 $
- Total :
- 785 300,00 $
Bâtiment
- Façade :
- 57.00 Pieds
- Profondeur :
- 31.00 Pieds
- Superficie :
- 3534.00
- Forme irrégulière :
- Oui
Inclusions
- Luminaires, rideaux et persiennes, électroménagers haut de gamme (réfrigérateur 42 pouces, 2 fours encastrés, plaque induction, machine à café encastrée, laveuse et sécheuse, moteur d'aspirateur central et ses accessoires, BBQ DCS, réfrigérateur extérieur, réfrigérateur et congélateur au sous-sol, étagères de la cave à vin, thermopompe centrale, piscine creusée et accessoires, thermopompe de la piscine, système d'irrigation et 2 robots Husqvarna automower, borne de recharge pour véhicule Tesla
Terrain
- Façade :
- 162.00 Pieds
- Profondeur :
- 160.00 Pieds
- Superficie :
- 22203.00 Pieds carrés
- Forme irrégulière :
- Oui
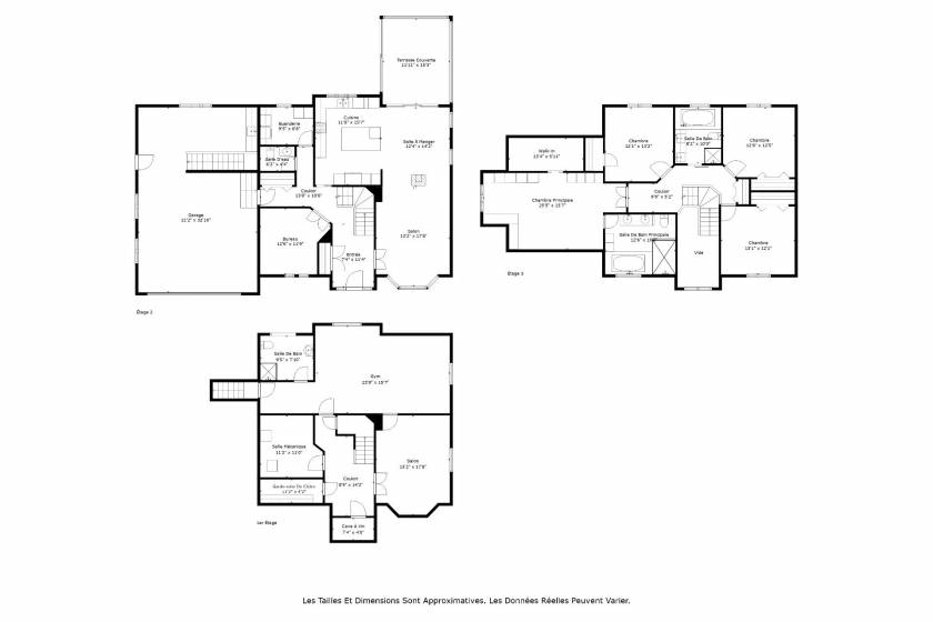
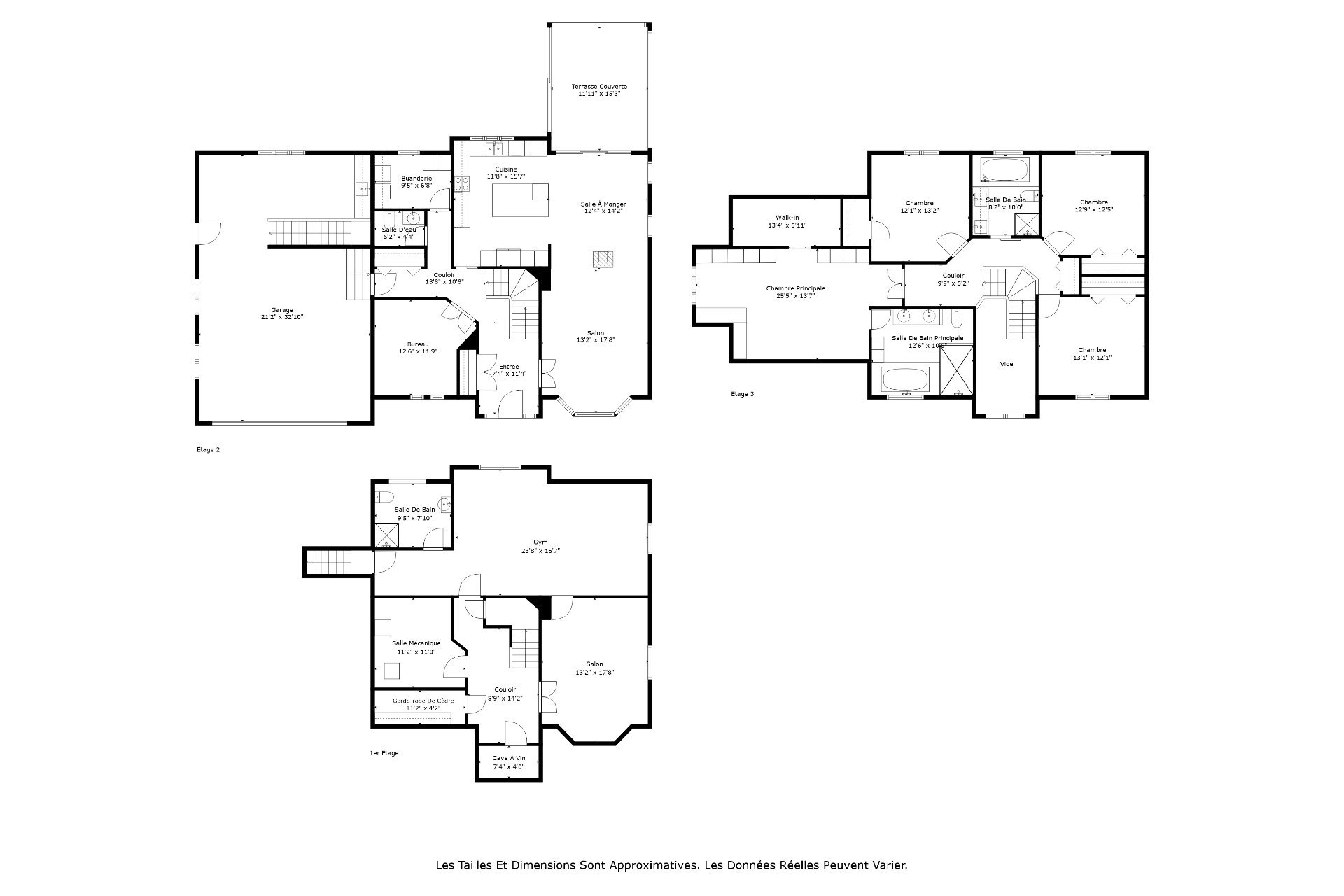
Détails des pièces
1er niveau/RDC
- Hall d'entrée (7x7 P)
- Salon (19x13 P)
- Salle à manger (11x11 P)
- Cuisine (16x13 P)
- Salle de lavage (9x6 P)
- Salle d'eau (5.5x4.6 P)
- Bureau à domicile (10x10 P)
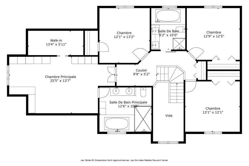
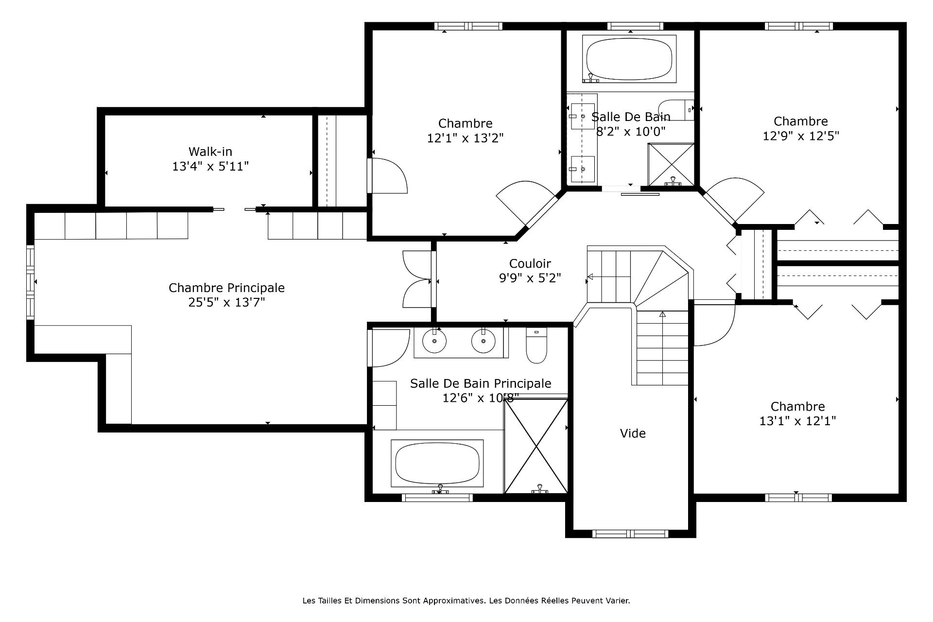
2ième étage
- Chambre à coucher principale (25x14 P)
- Salle de bains (12x10 P)
- Chambre à coucher (12x12 P)
- Chambre à coucher (13x12 P)
- Chambre à coucher (13x12 P)
- Salle de bains (10x8 P)
- Rangement (13x6 P)
Sous-sol
- Salle familiale (16x13 P)
- Autre (24x14 P), Gym
- Salle de bains (9x7 P)
- Autre (11x5 P), Garde-robe cèdre
- Cave à vin (10x6 P)
placeVoir sur la carte
Affichage sur la carte
emailDemande d'informations
Si vous avez déjà communiqué avec un autre courtier que celui proposé, nous vous demandons de le sélectionner.
- AA :
- Courtier immobilier résidentiel et commercial agréé
- AF :
- Courtier immobilier résidentiel et commercial
- CRES :
- Courtier immobilier résidentiel
En complétant les champs de ce formulaire, vous consentez à transmettre vos informations pour des fins de suivi selon les dispositions de nos Conditions d'utilisation et politique de confidentialité.
Vous n'avez pas trouvé ?
Communiquez
avec nous!
Jean Dubuc
Courtier immobilier résidentiel et commercial
418 240-0758



















































































































